金屬管浮子流量計指針卡頓的原因分析
點擊次數:1619 發布時間:2023-12-23 09:46:41
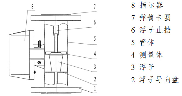
金屬管浮子流量計被測介質自下而上流經測量管時,浮子上下端產生差壓形成上升力,當浮子所受上升力大于浸在流體中浮子重量,浮子便上升,環隙面積隨之增大,環隙處流體流速迅速下降。
浮子上下端差壓降低,作用于浮子的上升力隨著減小,直到上升力與浸在流體中浮子重量平衡時,浮子便穩定在位置,浮子位置的高低即對應著被測介質流量的大小。

浮子內置磁鋼,在浮子隨介質上下移動時,磁場隨浮子的移動而變化。
通過一個磁傳感器將磁場變化轉化成電信號,經模數變換,數字濾波,溫度補償,微處理器處理,數模轉換,液晶顯示,開關控制輸出,來顯示出瞬時流量和累積流量大小并加以控制。

1、金屬管浮子流量計指針抖動:
1.金屬管浮子流量計指針輕微抖動:一般由于介質波動引起。可采用增加阻尼的方式來克服。
2.指針中度抖動:一般由于介質流動狀態造成。對于氣體一般由于介質操作壓力不穩造成。可采用穩壓或穩流裝置來克服或加大浮子流量計氣阻尼。
3.指針劇烈抖動:主要由于介質脈動,氣壓不穩或用戶給出的氣體操作狀態的壓力、溫度、流量與金屬管浮子流量計實際的狀態不符,有較大差異造成浮子流量計過量。

2、金屬管浮子流量計指針卡死:
金屬管浮子流量計指針被卡死,可能是因為金屬管浮子流量計*次使用時開啟閥門過快,使得浮子飛快向上沖擊止動器,造成止動器變形而將浮子卡死。
但也不排除由于浮子導向桿與止動環不同心,造成浮子卡死。
處理時可將儀表拆下,將變形的止動器取下整形,并檢查與導向桿是否同心,如不同心可進行校正,然后將浮子裝好,手推浮子,感覺浮子上下通暢無阻卡即可。另外,在金屬管浮子流量計安裝時一定要垂直或水平安裝,不能傾斜,否則也容易引起卡表并給測量帶來誤差。
上一篇:金屬管浮子流量計的特點


